Volver
Buscar

Chalet Leßner - Puro diseño y tranquilidad

Max.  7  Huéspedes
140m²
3 Dormitorios
Compartir
Introduzca las fechas de su viaje para conocer los precios exactos
Cancelación sin coste alguno
2 Huéspedes




Descripción

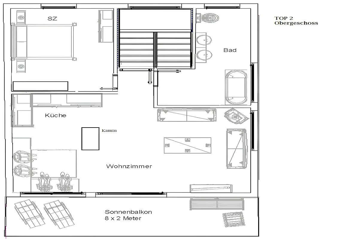
Planta baja: (cocina abierta(tetera, fogón(4 placas de cocina, inducción), cafetera(filtro), horno, lavavajillas, nevera con congelador , Wine glasses), salón-comedor(TV, mesa de comedor, área sofá , balcón o terraza), dormitorio(cama doble), dormitorio(cama individual, cama doble), cuarto de baño(ducha), váter)

En la 1ª planta: (cocina abierta(tetera, fogón(4 placas de cocina, inducción), cafetera(filtro), máquina de espresso, horno, lavavajillas, nevera con congelador ), salón-comedor(TV, mesa de comedor, chimenea, área sofá , instalación estéreo, balcón), dormitorio(cama doble), cuarto de baño(bañera, lavabo, lavabo, private infrared cabin, váter))

almacén de esquís(calentadores de botas de esquí), lavadora, terraza, jardín, almacenamiento para bicicletas, muebles de jardín, barbacoa, aparcamiento

Dos elegantes apartamentos en un exclusivo chalet en el valle de Leutasch: así es el Chalet Leßner. Su arquitectura limpia, materiales naturales de alta calidad y un diseño cuidado crean un alojamiento temporal excepcional, con amplio espacio para la paz, la relajación y el disfrute de la naturaleza.

El chalet ofrece espacio para hasta 7 personas en 3 dormitorios, 2 cocinas totalmente equipadas, dos salas de estar (una con chimenea y otra con acceso al jardín) y dos amplios baños con elementos de bienestar como una bañera exenta y una cabina de vapor infrarrojo.

Tanto en verano como en invierno: la ubicación es ideal. Pistas de esquí de fondo, rutas de senderismo, rutas ciclistas y una parada de autobús están a solo unos pasos. En verano, lagos ideales para nadar, pastos alpinos y el valle de Gaistal atraen, mientras que en invierno, 245 km de pistas de esquí de fondo y rutas de senderismo nevadas le esperan. Se incluyen mapas de esquí de fondo.

Amplio jardín, balcón con vistas a la montaña y estacionamiento gratuito justo enfrente de la casa: Chalet Leßner es el lugar perfecto para familias o amigos que buscan retiro y comodidad.

Equipamiento

Animales domésticos bienvenidos Animales domésticos bienvenidos
WiFi WiFi
Jardín Jardín
Televisor Televisor
Terraza Terraza
Lavaplatos Lavaplatos
Lavadora Lavadora
Chimenea Chimenea
Balcón Balcón

Zona exterior

Balcón
Jardín
Barbacoa
Aparcamiento para turismo
Terraza

Cuarto de baño

Cuarto de baño

Cuarto de baño 1

Baños con ducha y bañera

Cuarto de baño

Baño de invitados 1


Cocina

Fogón de 4 placas
Congelador
Lavaplatos
Frigorífico
Horno
calentador de agua
máquina de café
campo de inducción

Dispositivos y accesorios

Televisor
Lavadora
WiFi
Detectores de humo
para guardar las bicicletas
muebles de jardín
Equipo de alta fidelidad

Adecuado para

Animales domésticos bienvenidos

Dormitorios

Dormitorios en total: 7

2Número de habitaciones de dos camas 2Número de habitaciones de dos camas
1Número de habitaciones de tres camas 1Número de habitaciones de tres camas

Llegada/ubicación

Mostrar mapa del país

Llegada y distancias

Lago 4 kilómetro

Telesquí 4 kilómetro

Restaurante 1.5 kilómetro

Centro de la ciudad 3 kilómetro

Aeropuerto 44 kilómetro



Posibilidades de ocio

Golf
Esquí
Senderismo

Directrices


Indicaciones del arrendador

Registro de entrada: 16:00
Registro de salida: 10:00

Información adicional sobre el precio de alquiler:

Limpieza final: Incluida.
Mascotas: Max. 2; € 15/animal/noche. Las mascotas deberán indicarse durante el proceso de reserva en relación con la disponibilidad limitada.
Ropa de cama: Presente.
Tasa turística: Incluida.
Toallas de baño: Presente.
Paños de cocina: Presente.

Condiciones de cancelación:

Cancelación gratuita posible hasta 43 días antes de la fecha de llegada.

No puede cancelar una reserva definitiva de forma gratuita. Cuanto más se acerque a la fecha de llegada, en más gastos se incurrirá para preparar su estancia. Por lo tanto, el importe de la tasa de cancelación depende de ello:
•hasta 43 días antes de la fecha de llegada: 0% del importe del viaje;
•de 42 a 29 días antes de la fecha de llegada: 40% del importe del viaje;
•desde 28 días hasta el día anterior a la fecha de llegada inclusive: 90% del coste total de la estancia; y - para cancelaciones posteriores o en caso de ausencia, se cobrará el 100% del monto del viaje.


Otra información:

Por razones de seguridad la casa no se arrendará a grupos de jovenes
Organizar fiestas de estudiantes, fiestas de despedida y botellones están prohibidos en esta vivienda
La casa de vacaciones dispone de un sistema de seguridad con cámara que no vulnera en modo alguno la privacidad de nuestros huéspedes


Disponibilidad

Utilice la calculadora de precios para conocer la disponibilidad y el precio.


La Casa de vacaciones tiene aún ninguna valoración

Se comprueba la autenticidad de las calificaciones. Lea más sobre esto en nuestras directrices de calificación.
Otorgar valoración

Contacto

Compañía Belvilla

Arrendador desde: 08/01/2020

Idiomas de contacto: alemán, inglés

Número del objeto: 4770639

Más alojamientos de Belvilla

Ver todos los alojamientos de Belvilla

Otros alojamientos que también podrían gustarle


Otra información

Ideas de vacaciones: Vacaciones con perro

Número del objeto: 4770639

Último actualizado: 24.03.2026

Anuncio en línea desde: 8 meses

URL: https://www.resido.es/4770639.htm

¿Tiene preguntas sobre este alojamiento?
Enviar mensaje
Chat